鏈板式刮泥撇油機
發布時間:2020-08-06 14:13:42 來源:admin

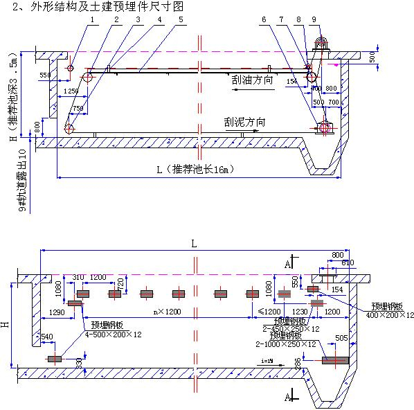
鏈板式撇油、刮沙、刮泥、撇渣機主要有固定于地面的減速驅動裝置及設置于池內帶刮板的牽引鏈,傳動鏈輪副及張緊裝置,安全防護裝置的組成。減速驅動裝置通過鏈輪副將動力傳遞于牽鏈帶動刮板沿池上下導軌做定向回轉連續運行,運行過程中刮板將池地沉砂、池面油渣不斷分別刮于集泥槽、排渣管排出池



(技術參數型號說明介紹及圖片僅供參考,*終以簽約及實物為準)
上一篇:無
下一篇:無


渝公網安備 50011202502457號